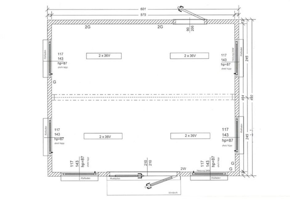
O Contentor Comercial de 29,4 m² da Brusato Container é uma estrutura modular de grande dimensão, projetada para quem necessita de um espaço de venda ou de trabalho confortável e espaçoso. Com dimensões de 6,01 x 4,90 metros, oferece um ambiente interno vasto, livre da sensação de opressão dos módulos individuais estreitos.
A qualidade construtiva é elevada: estrutura em aço galvanizado e isolamento em lã mineral prensada de 100 mm garantem durabilidade e conforto térmico em todas as estações. A segurança está em primeiro lugar graças aos 6 estores manuais e à porta de enrolar incluídos. O interior é acabado com pavimento em PVC efeito madeira reforçado (carga 200 kg/m²) e teto falso estético, pronto para receber clientes ou funcionários.
Características Técnicas
- Dimensões Externas: 6.01 m (Comprimento) x 4.90 m (Largura) x 2.75 m (Altura).
- Dimensões Internas: 5.75 m x 4.64 m x 2.50 m (Altura útil).
- Superfície: 29,4 m².
- Estrutura: Aço galvanizado com chapa externa 0,5 mm.
- Isolamento Térmico: Lã mineral prensada espessura 100 mm (Paredes e Teto).
- Caixilharia: Janelas PVC vidros duplos (1170×1430 mm), Porta exterior (210×210 cm).
- Segurança e Acessórios: 6 Estores manuais, 1 Porta de enrolar manual, Marquise exterior.
- Instalações (Incluídas): Elétrica 230V (Tomadas, LED 4x14W), Aquecimento elétrico com fusíveis dedicados.
- Hidráulica: Tubagens de água e esgoto integradas nas paredes para ligação rápida.
- Pavimento: Reforçado (200 kg/m²) com revestimento PVC efeito madeira.
Vantagens para o Cliente
- Ampla Metragem: Quase 30 metros quadrados úteis num único ambiente open space ou divisível.
- Isolamento Acústico e Térmico: A lã mineral de 100mm oferece desempenho superior em comparação com o poliestireno padrão, ideal para escritórios silenciosos.
- Segurança Noturna: Os estores em todas as janelas protegem contra arrombamentos e atos de vandalismo quando a atividade está encerrada.
- Versatilidade: Perfeito como Pop-up Store, Escritório de Vendas de Estaleiros, Showroom ou Sala de Reuniões.
- Ligações Ocultas: Instalação hidráulica integrada nas paredes para uma estética limpa (ideal para instalar uma casa de banho ou um canto de café).
Instalação
O módulo, dadas as dimensões (largura 4,90m), é geralmente montado no local ou transportado como transporte excecional (ou em dois módulos para acoplar). Requer uma laje de cimento. Pronto a usar assim que conectado às redes.
